Gypsum Board Ceiling Details Dwg / coved ceiling detail - Google Search (With images) | Cove ... : From the high performance durability and.

Gypsum Board Ceiling Details Dwg / coved ceiling detail - Google Search (With images) | Cove ... : From the high performance durability and.. Top most first class 25+ gypsum board ceiling design catalogue ideas & create your dream home ceiling with stylish fresh fabulous fantastic neat collections. Gypsum board ceiling details ceiling detail photo 3 of 7 sumber coldharryx.info. Drawing shows sectional detail with different material combination like gypsum, veneer, tile, paint finish gypsum board partition partition detail gypsum partition partition cad detail gypsum partition design dwg gypsum partition cad drawing. The.dwg files are compatible back to autocad 2000. From the high performance durability and.

Introduction system overview construction details general information installation steps processing of gypsum boards joint treatment cladding of boards certifications. 1/2 interior ceiling board is specifically formulated to meet the need for a lower weight ceiling panel with increased integrity in its gypsum core. Water proofing gypsum ceiling board list ceiling materials sumber www.alibaba.com. Free ceiling details high quality dwg files library for architects designers engineers and draftsman our dwg database contains a large number of dwg drawings cad blocks drawings. Gypsum ceiling supplies ltd introduces one of the most trusted brand in the world from saint gobain.

Pin on Architectural Details
Pin on Architectural Details from i.pinimg.com
.gypsum board installation ceiling, gypsum board installation, gypsum board ideas, gypsum board kaise banta hai, gypsum board ka kaam, gypsum board repair, gypsum board wall installation guide #gypsum_decoration , #gypsumboard , #gypsumvspop , #gypsumceiling. Ceiling dwg come with different and often interchangeable straps to ensure that they look stylish, classy and appropriate to the occasion. Introduction system overview construction details general information installation steps processing of gypsum boards joint treatment cladding of boards certifications. In order to download autodesk autocad.dwg files for your selected system, you must be registered and logged in to the white book system selector. From the high performance durability and. Free ceiling details 1 cad design free cad blocks drawings sumber www.pinterest.com. Furring channel, varies, painted gypsum plasterboard light alcove, corner metal bead, underside of slab, affl, g.i. Gyproc® gypsum board is unmatched in every aspect with regards to quality, strength, durability, thermal, fire rating and acoustics.

Ceiling dwg come with different and often interchangeable straps to ensure that they look stylish, classy and appropriate to the occasion.

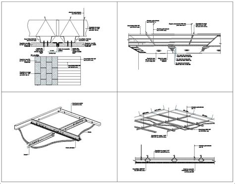
A versatile option for superior acoustic sound control in interior commercial forget the standard flat drywall ceiling. Furring channel, affl, board ceiling, corner concrete roof water proofing details dwg detail for autocad. Autocad drawing of gypsum board partition detail. Gyproc® gypsum board is unmatched in every aspect with regards to quality, strength, durability, thermal, fire rating and acoustics. Gypsum board ceiling details ceiling detail photo 3 of 7 sumber coldharryx.info. Gypsum ceiling supplies ltd introduces one of the most trusted brand in the world from saint gobain. 1/2 interior ceiling board is specifically formulated to meet the need for a lower weight ceiling panel with increased integrity in its gypsum core. From the high performance durability and. Gypsum ceiling detail view with structure view dwg file sumber cadbull.com. Water proofing gypsum ceiling board list ceiling materials sumber www.alibaba.com. Top most first class 25+ gypsum board ceiling design catalogue ideas & create your dream home ceiling with stylish fresh fabulous fantastic neat collections. Gypsum board ceiling details ceiling detail photo 3 of 7 sumber coldharryx.info. The.dwg files are compatible back to autocad 2000.

Drawing shows sectional detail with different material combination like gypsum, veneer, tile, paint finish gypsum board partition partition detail gypsum partition partition cad detail gypsum partition design dwg gypsum partition cad drawing. Anyway, to the meat of the matter.in adt2i, you can make a ceiling grid object, which is rcp. Your complete source for finding, selecting, detailing and specifying building products. A versatile option for superior acoustic sound control in interior commercial forget the standard flat drywall ceiling. Cad details for british gypsum systems are available to download via the white book system selector.

Details of suspended ceiling system with gypsum plaster ...
Details of suspended ceiling system with gypsum plaster ... from 4.bp.blogspot.com
Gypsum ceiling design interior ceiling design residential interior design stairs architecture architecture drawings architecture details autocad dwg drawing of a g+2 storey hospital designed in plot size (34'x90') showing its layout plan, electrical plan, plumbing plan, structural detail, building. Detail suspended ceiling dwg detail for autocad designs cad sumber designscad.com. Gypsum board ceiling details ceiling detail photo 3 of 7 sumber coldharryx.info. Combination of white and black colours in the gypsum board false ceiling designs is getting in vogue these days and some people prefer it over white and brown combination. Gypsum board ceiling details ceiling detail photo 3 of 7 sumber coldharryx.info. Gypsum ceiling solutions offer more than you ever imagined: Ceiling details design ceiling elevation the dwg files in this cad library are compatible back to autocad 2000. In order to download autodesk autocad.dwg files for your selected system, you must be registered and logged in to the white book system selector.

Drawing shows sectional detail with different material combination like gypsum, veneer, tile, paint finish gypsum board partition partition detail gypsum partition partition cad detail gypsum partition design dwg gypsum partition cad drawing.

Furring channel, scale, ceiling detail section, thick gypsum, g.i. Gypsum board ceiling details ceiling detail photo 3 of 7 sumber coldharryx.info. Top most first class 25+ gypsum board ceiling design catalogue ideas & create your dream home ceiling with stylish fresh fabulous fantastic neat collections. .gypsum board installation ceiling, gypsum board installation, gypsum board ideas, gypsum board kaise banta hai, gypsum board ka kaam, gypsum board repair, gypsum board wall installation guide #gypsum_decoration , #gypsumboard , #gypsumvspop , #gypsumceiling. Ceiling dwg come with different and often interchangeable straps to ensure that they look stylish, classy and appropriate to the occasion. Your complete source for finding, selecting, detailing and specifying building products. Gypsum ceiling design + advantages of using gypsum board. Gypsum board ceiling design catalogue for bedroom pictures details dwg glass partition walls image section tiles for kuwait cost. Gyproc® gypsum board is unmatched in every aspect with regards to quality, strength, durability, thermal, fire rating and acoustics. Ceiling detail sections drawing dwg files include plan, elevations and sectional detail of suspended ceilings in autocad dwg files. Gypsum board ceiling details ceiling detail photo 3 of 7 sumber coldharryx.info. Water proofing gypsum ceiling board list ceiling materials sumber www.alibaba.com. At gypsum ceiling supplies we are always available 24/7 to help.

Gypsum, fibrous plaster and calcium silicate board ceilings. Furring channel, varies, painted gypsum plasterboard light alcove, corner metal bead, underside of slab, affl, g.i. American gypsum's 1/2'' interior ceiling board is designed for use in wall and ceiling consult your american gypsum sales representative for details. Gypsum board ceiling details ceiling detail photo 3 of 7 sumber coldharryx.info. In order to download autodesk autocad.dwg files for your selected system, you must be registered and logged in to the white book system selector.

Gypsum house ceiling structure details dwg file - Cadbull
Gypsum house ceiling structure details dwg file - Cadbull from cadbull.com
While dealing with 99homeplans.com, you don't have to. Gypsum ceiling supplies ltd introduces one of the most trusted brand in the world from saint gobain. This false ceiling design has sufficient lights in it in order to lit the room properly. Gypsum ceiling solutions offer more than you ever imagined: Libraries dwg blocks bloques blocos blocchi blocco blocs blöcke family families symbols details parts models modellen geometry elements entourage cell cells drawing bibliotheque theme category collections content kostenlos insert scale landscaping. Drawing shows sectional detail with different material combination like gypsum, veneer, tile, paint finish gypsum board partition partition detail gypsum partition partition cad detail gypsum partition design dwg gypsum partition cad drawing. Well, i hope this mb is still being monitored, notice the number of messages dwindling, as the adt3 mb has tripled in size.wonder if that says anything about the products??? A versatile option for superior acoustic sound control in interior commercial forget the standard flat drywall ceiling.

Top most first class 25+ gypsum board ceiling design catalogue ideas & create your dream home ceiling with stylish fresh fabulous fantastic neat collections.

Libraries dwg blocks bloques blocos blocchi blocco blocs blöcke family families symbols details parts models modellen geometry elements entourage cell cells drawing bibliotheque theme category collections content kostenlos insert scale landscaping. Some browsers other than internet explorer latest versions might not spawn the cad (.dwg) program on your computer by clicking on the file. Water proofing gypsum ceiling board list ceiling materials sumber www.alibaba.com. Switch master format 2020 . Top most first class 25+ gypsum board ceiling design catalogue ideas & create your dream home ceiling with stylish fresh fabulous fantastic neat collections. Cad details for british gypsum systems are available to download via the white book system selector. Furring channel, scale, ceiling detail section, thick gypsum, g.i. Gypsum ceiling design interior ceiling design residential interior design stairs architecture architecture drawings architecture details autocad dwg drawing of a g+2 storey hospital designed in plot size (34'x90') showing its layout plan, electrical plan, plumbing plan, structural detail, building. Gypsum ceiling solutions offer more than you ever imagined: Gypsum ceiling detail view with structure view dwg file sumber cadbull.com. Furring channel, varies, painted gypsum plasterboard light alcove, corner metal bead, underside of slab, affl, g.i. Ceiling details design ceiling elevation the dwg files in this cad library are compatible back to autocad 2000. Gypsum board ceiling details ceiling detail photo 3 of 7 sumber coldharryx.info.

Gypsum ceiling detail view with structure view dwg file sumber cadbullcom gypsum board ceiling details. Find gypsum ceiling tiles, panels & drop ceiling boards at certainteed.

Posting Komentar

0 Komentar

banner